Choose a Category
Las Granadas
Casa Pequeña
Floor Plans
Location
Contact Us
Home
 

 
 
Floor Plans
Click images for larger versions.

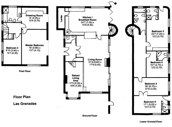
Las Granadas floor plan

Casa Pequena floor plan